(間取)
【中古戸建】港区三先戸建
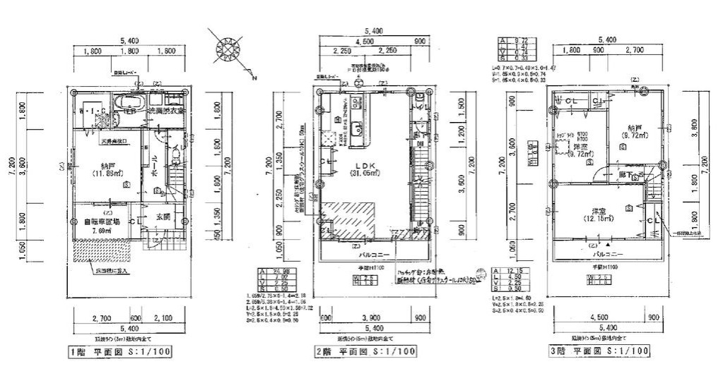
■木造3階建
■敷地面積:61.94㎡(約18.73坪)
■延床面積:110.83㎡(約33.52坪)
■間取り:3LDK+S(納戸)
■建ぺい率:80%
■容積率:200%
■大阪メトロ中央線「朝潮橋」駅より徒歩11分
基本情報
- 所在地
-
大阪府大阪市港区三先1丁目 港区三先1丁目戸建
- 交通
-
大阪メトロ中央線 朝潮橋駅 徒歩11分
売買条件
- 物件種別
-
中古戸建
- 取引態様
-
仲介
- 引渡/入居時期
-
相談
土地
- 地目
-
宅地
- 用途地域
-
第一種住居
- 都市計画
-
市街化区域
- 地勢
-
平坦
- 土地面積
-
61.94m²
- 私道負担面積
-
10.60m²
- 建ぺい率
-
80%
- 容積率
-
200%
- 接道状況
-
一方
- 接道方向1
-
北西
- 接道間口1
-
2m
- 接道種別1
-
公道
- 接道幅員1
-
4m
部屋情報
- 所在階
-
3階
- 間取
-
3SLDK
S7.1畳 1階 LDK18.7畳 2階 洋室5.8畳 3階 洋室5.8畳 3階 洋室7.3畳 3階
- 向き
-
北西
建物情報
- 築年月
-
2013/03
- 現況
-
空家
- 建物構造
-
木造
- 建物階数
-
地上3階
- 総戸/区画数
-
1
- 面積
-
110.83m²
建物設備
その他
- 物件番号
-
4374
- 自社物
-
先物
- 特記事項
-
お気軽にお問い合わせください。
※物件掲載内容と現況に相違がある場合は現況を優先と致します。
担当エージェント
- 売買カテゴリー