【売土地】福島区吉野1丁目売土地
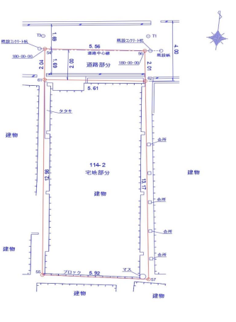
■土地面積:79.35㎡(約24.00坪)
■建築条件なし(お好きなハウスメーカーで建築可能です)
■建ぺい率:80%
■容積率:300%
■前面道路:幅員3.38m
■阪神電鉄本線「野田」駅より徒歩6分
■更地渡し
基本情報
- 所在地
-
大阪府大阪市福島区吉野1丁目 福島区吉野1丁目売土地
- 交通
-
阪神本線 野田駅 徒歩6分
売買条件
- 物件種別
-
売地
- 取引態様
-
仲介
- 引渡/入居時期
-
相談
土地
- 地目
-
宅地
- 用途地域
-
第二種住居
- 都市計画
-
市街化区域
- 地勢
-
平坦
- 土地面積
-
79.35m²
- 私道負担面積
-
9.5m²
- セットバック量
-
1.9m²
- 建ぺい率
-
80%
- 容積率
-
300%
- 接道状況
-
一方
- 接道方向1
-
北
- 接道幅員1
-
3.38m
部屋情報
建物情報
- 現況
-
古屋あり
建物設備
その他
- 物件番号
-
4361
- 自社物
-
先物
- 特記事項
-
お気軽にお問い合わせください。
※物件掲載内容と現況に相違がある場合は現況を優先と致します。
担当エージェント
- 売買カテゴリー