【賃貸マンション】THE UMEDA TOWER 
(間取)

(間取)

【賃貸マンション】THE UMEDA TOWER 
【賃貸マンション】THE UMEDA TOWER 
1/-

賃貸

【賃貸マンション】THE UMEDA TOWER 

■分譲タイプ

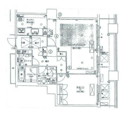
■間取り:1LDK

■専有面積:74.84㎡

■43階建/34階部分

■東向き

■阪急電鉄神戸線「大阪梅田」駅より徒歩4分

■大阪メトロ谷町線「中崎町」駅より徒歩6分

 

基本情報

所在地
大阪府大阪市北区鶴野町  THE UMEDA TOWER
交通
阪急神戸本線 大阪梅田駅 徒歩4分
大阪メトロ谷町線 中崎町駅 徒歩6分

賃貸条件

物件種別
マンション
賃料
27万円
共益費・管理費
20,000円
取引態様
仲介
引渡/入居時期
相談
敷金
30万円
礼金
50万円

部屋情報

所在階
34階
間取
1LDK
向き

建物情報

築年月
2005/12
現況
空家
建物構造
RC
建物階数
地上43階 
面積
74.84m²

建物設備

設備・条件
ガスコンロ システムキッチン 追い焚き 独立洗面台 浴室乾燥機 バス・トイレ別 温水洗浄便座 エアコン 室内洗濯機置き場 オートロック カードキーシステム エレベータ 宅配ボックス フロントサービス

その他

物件番号
4143
自社物
先物
特記事項
お気軽にお問い合わせください。

※物件掲載内容と現況に相違がある場合は現況を優先と致します。